中古一戸建住宅
「利回り」は、当該不動産の1年間の予定賃料収入の不動産取得対価に対する割合であり、公租公課その他当該物件を維持するために必要な費用の控除前のものです。
また、予定賃料収入が確実に得られる事を保証するものではありません。

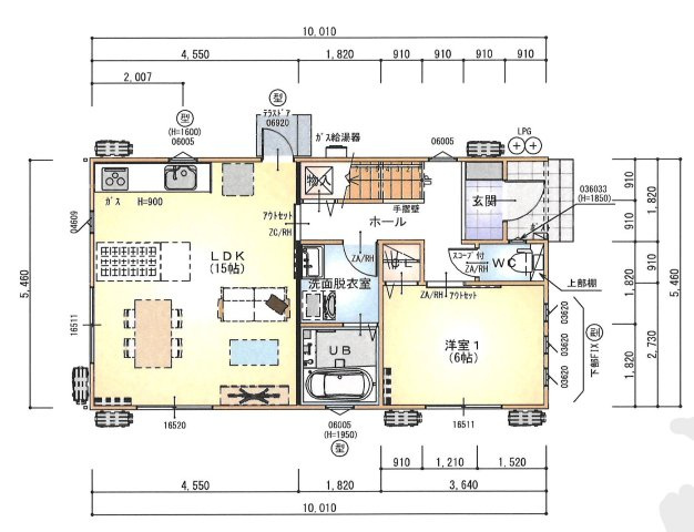
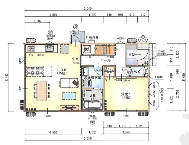
建物面積は107.64㎡となっており広々とした空間で生活することができます。広々とした15帖以上のLDKで家族とゆったり過ごせます。こちらの土地は前面道路6m以上です。
※地図上の物件位置は近隣に物件が所在することを表すものであり、実際の物件所在地とは異なる場合がございます。
023-666-8028
営業時間:9:00~18:00(月~金)、9:00~12:00(土)、2月3月は日曜日9:00~15:00 / 定休日:日曜・祝日(2月3月は日曜日営業)
| 所在地 | 山形県山形市みはらしの丘1丁目 | ||
|---|---|---|---|
| 交通 |
奥羽本線 「蔵王」駅
徒歩29分 奥羽本線 「茂吉記念館前」駅 徒歩41分 |
||
| 価格 | 2,200万円 | ||
| 間取り |
4LDK
洋室 6.0帖 1室 / 洋室 6.5帖 2室 / 洋室 8.0帖 1室 / |
||
| 築年月(築年数) | 2018年 6月(築7年) | 主要採光面 | 東 |
| 建物構造 | 木造 | 階数 | 2階建 |
| 私道負担面積 | セットバック | ||
| 接道状況 | 一方 (北側 公道11.0m 間口14.0m) | ||
| 建ぺい率/容積率 | 50%/ 100% | 土地権利 | 所有権 |
| 地目 | 宅地 | 地勢 | |
| 土地の権利形態 | |||
| 都市計画 | 市街化区域 | 用途地域 | 第一種低層住居専用地域 |
| その他法令上の制限 | |||
| 国土法届出 | 不要 | 取引態様 | 一般媒介 |
| 現況 | 居住中 | 引渡し | 相談 |
| リフォーム | |||
| 駐車場 | |||
| 設備条件 | 公共下水 / 公営水道 / 閑静な住宅地 / プロパンガス / フローリング / ガスコンロ / バス・トイレ別 / 洗髪洗面化粧台 / 複層ガラス | ||
| その他条件 | |||
| 備考 | 家族におすすめな4LDK。設備も充実しています。前面道路6m以上は確保しているので車の出し入れもラクラクです。今回紹介するのは、建物面積が107.64平米。 | ||
| 周辺の学校 | 山形市立みはらしの丘小学校(約1,232m / 徒歩16分)、山形市立第九中学校(約2,297m / 徒歩29分) | ||
| 物件番号 | 84938471 | ||
| 情報公開日 | 2026年2月18日 | 次回更新予定日 | 2026年3月4日 |
| 取引条件の有効期限 | 2026年3月4日 | ||
| 取扱い会社 |
ファースト興産株式会社 〒990-0043 山形県山形市本町1丁目3-14ラサール本町1F 山形県知事(8)第1624号 公益社団法人 山形県宅地建物取引業協会会員・一般社団法人 全国賃貸不動産管理業協会会員・山形県マンション管理士会会員・東北地区不動産公正取引協議会加盟 |
||
023-666-8028
営業時間:9:00~18:00(月~金)、9:00~12:00(土)、2月3月は日曜日9:00~15:00 / 定休日:日曜・祝日(2月3月は日曜日営業)
| 所在地 | 物件の住所を表示。(詳細住所は表示していない場合もある) | ||
|---|---|---|---|
| 交通 | 物件(部屋)の沿線駅・バス停を表示。(複数駅・バス停の利用が可能な場合は最大3件まで) | ||
| 間取り/詳細 | 数字は居室数を表示。LDKはそれぞれ「リビング」「ダイニング」「キッチン」、S(納戸)とは「納戸」「サービスルーム」「マルチルーム」「フリールーム」など建築基準法第28条に適合していないため、居室と認められない納戸その他の部分を表す。 | ||
| 価格 | 販売されている住戸の価格を表示。仲介手数料は含まない。 | ||
| 管理費 | 共同住宅の設備その他共用部分の維持および管理をするために必要な費用を表示。 | ||
| 修繕積立金 | 共用部分の修繕のために積立てる金額を表示。 | ||

中古一戸建住宅
| 価格 | 1,749 万円 | ||
|---|---|---|---|
| 間取り | 4LDK | 築年月(築年数) | 1980年 7月 (築45年) |
| 建物面積 | 90.25㎡ | 土地面積 | 134.01㎡ |
| 住所 | 山形県山形市松山1丁目 | ||
| 交通 |
奥羽本線「山形」駅 徒歩34分
|
||
【外観】